1. ホーム
  2. 物件検索
  3. 物件詳細

中古一戸建て広島市東区中山上2丁目

商談中
1 /3

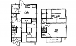
【間取り】

****万円

〇東区中山上2丁目 中古戸建て
〇緑豊かな環境

物件概要

所在地
広島市東区中山上2丁目
価格
**** 万円
交通

バス停中山上町 まで 徒歩3分

接道状況
南側4m 間口約6.3m
土地面積
87.13㎡ (26.35坪)
建物面積
57.96㎡ (17.53坪)
間取り
3DK
築年数
1972年 (昭和47) 3月
築54年
建ぺい率
50%
容積率
100%
土地権利
構造および階数
木造 地上2階建
小学校区
中山
中学校区
二葉
私道負担
地目
現況
引渡時期
相談
駐車場
上水道
公共
下水道
ガス
都市計画
用途地域
1種低層
設備・条件
備考
取引態様
仲介
周辺地図を確認する

(弊社管理番号: 3005160)

【更新日】2025年05月13日

【次回更新日】2026年05月13日

その他周辺物件

この物件は1381の方が興味を持っています。

お気軽にご来店ください!SHOP

店舗外観

すみはる商店

〒732-0052 広島県広島市東区光町1丁目6-30-102

営業時間:10:00〜18:00 定休日:水曜日・祝日

広島市東区・南区・安芸区、安芸郡の不動産情報はすみはる商店へ

HPを見たと言って、お気軽にお問い合わせください!

0120-859-869 0120-859-869

〒732-0052 広島県広島市東区光町1丁目6-30-102
営業時間:10:00〜18:00 定休日:水曜日・祝日

店内写真