1. ホーム
  2. 物件検索
  3. 物件詳細

新築一戸建て広島市安芸区矢野東4丁目【3号地】

1 /7

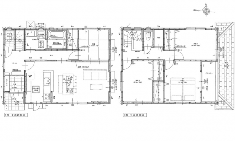
【間取り】

4,380万円

■安芸区矢野東4丁目 新築戸建て
■駐車3台可

物件概要

所在地
広島市安芸区矢野東4丁目【3号地】
価格
4,380 万円
交通

バス停矢野出張所前 まで 徒歩5分

接道状況
北側 公道4m
土地面積
280.72㎡ (84.91坪)
建物面積
103.51㎡ (31.31坪)
間取り
4LDK
築年数
2025年 (令和7) 10月
建ぺい率
60%
容積率
200%
土地権利
構造および階数
木造 地上2階建
小学校区
矢野 (1171m)
中学校区
矢野 (1354m)
私道負担
地目
現況
引渡時期
相談
駐車場
3台
上水道
公共
下水道
公共
ガス
都市計画
用途地域
1種住居
設備・条件
システムキッチン、カウンターキッチン、IHクッキングヒーター、オール電化、シャンプードレッサー、追い焚き、複層ガラス、ウォークインクローゼット、モニタ付インターホン、駐車場3台分、床下収納、エコキュート、トイレ2箇所
備考
▼ZEH仕様▼フラット35S(A)
▼キッチン・カップボード:クリナップ 
▼トイレ・洗面化粧台・システムバス:TOTO 
▼ポーチ・玄関(親子ドア)・廊下:人感センサーライト 
▼玄関鍵ポケットkey(電気錠) サッシYKK Low-E複層ガラス 
▼収納豊富
取引態様
仲介
周辺地図を確認する

(弊社管理番号: 3005167)

【更新日】2026年01月23日

【次回更新日】2026年04月23日

その他周辺物件

この物件は1164の方が興味を持っています。

お気軽にご来店ください!SHOP

店舗外観

すみはる商店

〒732-0052 広島県広島市東区光町1丁目6-30-102

営業時間:10:00〜18:00 定休日:水曜日・祝日

広島市東区・南区・安芸区、安芸郡の不動産情報はすみはる商店へ

HPを見たと言って、お気軽にお問い合わせください!

0120-859-869 0120-859-869

〒732-0052 広島県広島市東区光町1丁目6-30-102
営業時間:10:00〜18:00 定休日:水曜日・祝日

店内写真