1. ホーム
  2. 物件検索
  3. 物件詳細

新築一戸建て広島市南区堀越3丁目団地名:セルリアンステージ堀越三丁目

1 /8

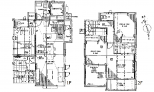
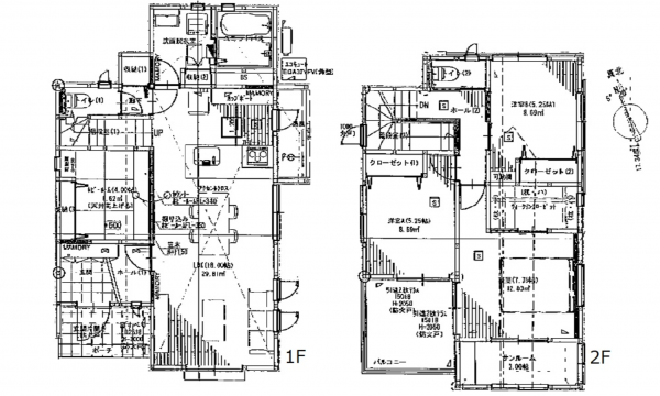
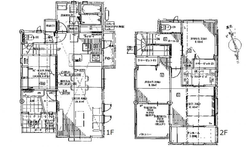
【間取り】

4,730万円

●広々土地約69坪!建物約32坪!
●4LD+3サンルーム+WIC付
●スーパーアルゾ徒歩11分・青崎小学校徒歩11分

物件概要

所在地
広島市南区堀越3丁目団地名:セルリアンステージ堀越三丁目
価格
4,730 万円
交通

山陽本線 向洋駅 まで 徒歩16分

バス停堀越三丁目 まで 徒歩3分

接道状況
南側3.2~3.4m
土地面積
229.01㎡ (69.27坪)
建物面積
106.82㎡ (32.31坪)
間取り
4LD+3サンルーム+WIC付
築年数
2026年 (令和8) 3月
建ぺい率
60%
容積率
160%
土地権利
構造および階数
木造 地上2階建
小学校区
青崎 (1013m)
中学校区
大州
私道負担
地目
現況
引渡時期
相談
駐車場
3台
上水道
公共
下水道
公共
ガス
都市計画
用途地域
1種住居
設備・条件
システムキッチン、カウンターキッチン、食器洗浄乾燥機、IHクッキングヒーター、オール電化、シャンプードレッサー、洗浄便座、浴室乾燥機、複層ガラス、ウォークインクローゼット、モニタ付インターホン、駐車場3台分、床下収納、エコキュート、トイレ2箇所
備考
▼69坪超のひろびろ敷地
▼準防火仕様 省エネ基準適合住宅 制振ダンパー(住友ゴムMAMORY)▼フラット35S(金利Bプラン)対応 瑕疵担保責任保険(まもりすまい保険)
▼カップボード 1階・2階ウォシュレットトイレ オールLow-Eペアガラス アルミ樹脂複合サッシ 玄関ドア電子錠 パーティキッチン ホビールーム(1階ダイニング・4帖相当)
取引態様
仲介
周辺地図を確認する

(弊社管理番号: 3005393)

【更新日】2025年11月02日

【次回更新日】2026年05月02日

その他周辺物件

この物件は572の方が興味を持っています。

お気軽にご来店ください!SHOP

店舗外観

すみはる商店

〒732-0052 広島県広島市東区光町1丁目6-30-102

営業時間:10:00〜18:00 定休日:水曜日・祝日

広島市東区・南区・安芸区、安芸郡の不動産情報はすみはる商店へ

HPを見たと言って、お気軽にお問い合わせください!

0120-859-869 0120-859-869

〒732-0052 広島県広島市東区光町1丁目6-30-102
営業時間:10:00〜18:00 定休日:水曜日・祝日

店内写真