1. ホーム
  2. 物件検索
  3. 物件詳細

中古一戸建て広島市南区向洋新町4丁目団地名:洋光台シーサイドタウン

1 /2

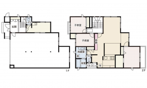
【間取り】

8,000万円

◆2階からの眺望に癒されます
◆1階事務所スペース有
◆贅沢な造りです
□駐車7台可能!

物件概要

所在地
広島市南区向洋新町4丁目団地名:洋光台シーサイドタウン
価格
8,000 万円
交通

バス停向洋新町車庫 まで 徒歩4分

JR呉線 向洋駅 まで 徒歩30分

接道状況
南西側 公道6m
土地面積
275.54㎡ (83.35坪)
建物面積
195.50㎡ (59.13坪)
間取り
3SLDK
築年数
2004年 (平成16) 1月
築22年
建ぺい率
60%
容積率
200%
土地権利
構造および階数
木造 地上2階建
小学校区
向洋新町 (1446m)
中学校区
大州
私道負担
地目
現況
引渡時期
相談
駐車場
7台
上水道
公共
下水道
公共
ガス
都市ガス
都市計画
用途地域
1種住居
設備・条件
システムキッチン、カウンターキッチン、食器洗浄乾燥機、シャンプードレッサー、洗浄便座、駐車場3台分、トイレ2箇所
備考
▼1階に事務所スペース有り 
▼駐車:外3台並列 内4台縦列(車種による)
▼駐車場シャッターはオーバーヘッドスライダー採用   
▼室内綺麗です エアコン5台付き 贅沢な造りです
▼眺望良好 収納多 屋根裏部屋有
取引態様
仲介
周辺地図を確認する

(弊社管理番号: 3005396)

【更新日】2025年10月07日

【次回更新日】2026年03月07日

その他周辺物件

この物件は325の方が興味を持っています。

お気軽にご来店ください!SHOP

店舗外観

すみはる商店

〒732-0052 広島県広島市東区光町1丁目6-30-102

営業時間:10:00〜18:00 定休日:水曜日・祝日

広島市東区・南区・安芸区、安芸郡の不動産情報はすみはる商店へ

HPを見たと言って、お気軽にお問い合わせください!

0120-859-869 0120-859-869

〒732-0052 広島県広島市東区光町1丁目6-30-102
営業時間:10:00〜18:00 定休日:水曜日・祝日

店内写真