1. ホーム
  2. 物件検索
  3. 物件詳細

新築一戸建て安芸郡海田町南幸町【セルリアンステージ海田南幸町】

1 /10

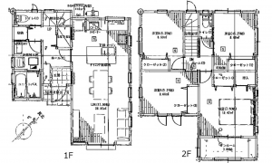
【間取り】

4,580万円

●2026年2月完成!
●南向きのサンルーム

物件概要

所在地
安芸郡海田町南幸町【セルリアンステージ海田南幸町】
価格
4,580 万円
交通

山陽本線 海田市駅 まで 徒歩20分

バス停曙町 まで 徒歩5分

接道状況
南東側 私道4.2m
土地面積
120.15㎡ (36.34坪)
建物面積
102.68㎡ (31.06坪)
間取り
4LDK
築年数
2026年 (令和8) 2月
建ぺい率
60%
容積率
168%
土地権利
構造および階数
木造 地上2階建
小学校区
海田南 (465m)
中学校区
海田 (349m)
私道負担
地目
現況
引渡時期
相談
駐車場
2台
上水道
公共
下水道
公共
ガス
都市計画
用途地域
1種住居
設備・条件
システムキッチン、カウンターキッチン、食器洗浄乾燥機、IHクッキングヒーター、オール電化、シャンプードレッサー、洗浄便座、浴室乾燥機、複層ガラス、モニタ付インターホン、駐車場2台分、床下収納、エコキュート、トイレ2箇所
備考
▼省エネ基準適合住宅 制振ダンパー(住友ゴムMAMORY)
▼フラット35S(金利Bプラン)対応
▼瑕疵担保責任保険(まもりすまい保険)
▼IHクッキングヒーター 食器洗乾燥機 カップボード 浴室乾燥機能
▼1F・2Fウォシュレットトイレ オールLow-Eペアガラス アルミ樹脂複合サッシ
▼玄関ドア電子錠
▼Ⅱ型アイランドキッチン(ドゥーブルキッチン)
取引態様
仲介
周辺地図を確認する

(弊社管理番号: 3005407)

【更新日】2026年01月16日

【次回更新日】2026年02月16日

その他周辺物件

この物件は209の方が興味を持っています。

お気軽にご来店ください!SHOP

店舗外観

すみはる商店

〒732-0052 広島県広島市東区光町1丁目6-30-102

営業時間:10:00〜18:00 定休日:水曜日・祝日

広島市東区・南区・安芸区、安芸郡の不動産情報はすみはる商店へ

HPを見たと言って、お気軽にお問い合わせください!

0120-859-869 0120-859-869

〒732-0052 広島県広島市東区光町1丁目6-30-102
営業時間:10:00〜18:00 定休日:水曜日・祝日

店内写真