1. ホーム
  2. 物件検索
  3. 物件詳細

新築一戸建て広島市安芸区船越南3丁目1号地

1 /8

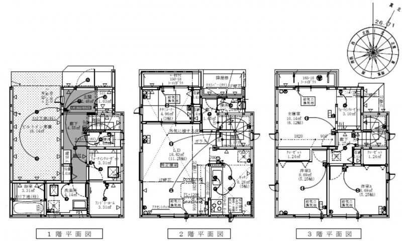
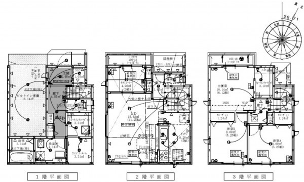
【間取り】

3,980万円

◎JR海田市駅歩13分♪

物件概要

所在地
広島市安芸区船越南3丁目1号地
価格
3,980 万円
交通

山陽本線 海田市駅 まで 徒歩13分

バス停東部市場前 まで 徒歩2分

接道状況
北西側 公道5m
土地面積
75.52㎡ (22.84坪)
建物面積
103.30㎡ (31.24坪)
間取り
4LDK
築年数
2026年 (令和8) 2月
建ぺい率
60%
容積率
200%
土地権利
構造および階数
地上3階建
小学校区
船越 (1144m)
中学校区
船越
私道負担
地目
現況
引渡時期
相談
駐車場
1台
上水道
下水道
ガス
都市ガス
都市計画
用途地域
準工業
設備・条件
システムキッチン、カウンターキッチン、複層ガラス、ウォークインクローゼット、モニタ付インターホン、トイレ2箇所
備考
▼設計・建設性能評価書取得 耐震等級3
▼フラット35S・金利Aプラン
▼適合証明取得代別途要93,500円(税込み)
▼オールペアガラス(アルミ樹脂複合) 地盤保証20年
▼引渡後無料点検(6ヶ月、2年、5年)
取引態様
仲介
周辺地図を確認する

(弊社管理番号: 3005414)

【更新日】2026年02月19日

【次回更新日】2026年03月19日

その他周辺物件

この物件は251の方が興味を持っています。

お気軽にご来店ください!SHOP

店舗外観

すみはる商店

〒732-0052 広島県広島市東区光町1丁目6-30-102

営業時間:10:00〜18:00 定休日:水曜日・祝日

広島市東区・南区・安芸区、安芸郡の不動産情報はすみはる商店へ

HPを見たと言って、お気軽にお問い合わせください!

0120-859-869 0120-859-869

〒732-0052 広島県広島市東区光町1丁目6-30-102
営業時間:10:00〜18:00 定休日:水曜日・祝日

店内写真