1. ホーム
  2. 物件検索
  3. 物件詳細

新築一戸建て広島市東区温品3丁目団地名:藤見が丘

1 /6

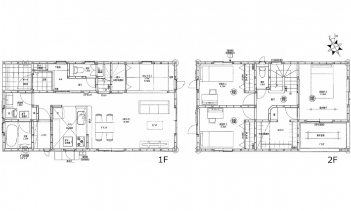
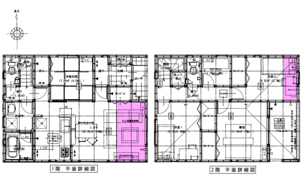
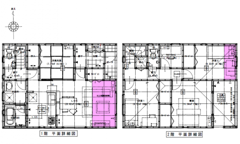
【間取り】

3,980万円

●テレワークルームあり! 4LDK+S
●人気のリビング隣り和室の間取り
●引渡後無料点検実施
●住宅性能評価取得

物件概要

所在地
広島市東区温品3丁目団地名:藤見が丘
価格
3,980 万円
交通

バス停下温品 まで 徒歩5分

接道状況
東側 公道3.7m
土地面積
116.72㎡ (35.30坪)
建物面積
105.29㎡ (31.85坪)
間取り
4LDK+S
築年数
2026年 (令和8) 3月
建ぺい率
60%
容積率
160%
土地権利
構造および階数
木造 地上2階建
小学校区
温品 (415m)
中学校区
温品 (733m)
私道負担
地目
現況
引渡時期
相談
駐車場
上水道
公共
下水道
公共
ガス
都市ガス
都市計画
用途地域
2種中高
設備・条件
システムキッチン、カウンターキッチン、ルーフバルコニー、モニタ付インターホン、トイレ2箇所
備考
▼引渡後無料点検実施(6ヶ月・2年・5年・10年の計4回)
▼住宅性能評価取得(4分野6項目最高等級取得)
取引態様
仲介
周辺地図を確認する

(弊社管理番号: 3005435)

【更新日】2025年12月25日

【次回更新日】2026年01月25日

その他周辺物件

この物件は112の方が興味を持っています。

お気軽にご来店ください!SHOP

店舗外観

すみはる商店

〒732-0052 広島県広島市東区光町1丁目6-30-102

営業時間:10:00〜18:00 定休日:水曜日・祝日

広島市東区・南区・安芸区、安芸郡の不動産情報はすみはる商店へ

HPを見たと言って、お気軽にお問い合わせください!

0120-859-869 0120-859-869

〒732-0052 広島県広島市東区光町1丁目6-30-102
営業時間:10:00〜18:00 定休日:水曜日・祝日

店内写真