1. ホーム
  2. 物件検索
  3. 物件詳細

新築一戸建て広島市東区矢賀4丁目

1 /10

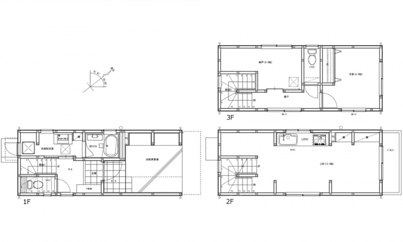
【間取り】

3,480万円

●JR矢賀駅まで徒歩4分!
●イオンモールまで徒歩7分・小学校まで徒歩5分の好立地!

物件概要

所在地
広島市東区矢賀4丁目
価格
3,480 万円
交通

芸備線 矢賀駅 まで 徒歩4分

バス停矢賀駅入口 まで 徒歩4分

接道状況
北東側 公道約4.0m 間口約4.0m
土地面積
44.16㎡ (13.35坪)
建物面積
73.29㎡ (22.17坪)
間取り
1LDK+S
築年数
2024年 (令和6) 10月
築1年
建ぺい率
60%
容積率
200%
土地権利
構造および階数
木造 地上3階建
小学校区
矢賀 (455m)
中学校区
二葉 (1800m)
私道負担
地目
現況
引渡時期
相談
駐車場
上水道
公共
下水道
公共
ガス
都市計画
用途地域
準工業
設備・条件
食器洗浄乾燥機、IHクッキングヒーター、オール電化、洗浄便座、浴室乾燥機、複層ガラス、モニタ付インターホン、エコキュート、トイレ2箇所
備考
▼木造在来工法 ベタ基礎
▼居室窓Low-Eペアガラス 玄関電気錠システム 浴室換気乾燥暖房機
▼利便性良好 イオンモール、エディオン徒歩7分
取引態様
仲介
周辺地図を確認する

(弊社管理番号: 3005437)

【更新日】2026年03月09日

【次回更新日】2026年05月09日

その他周辺物件

この物件は140の方が興味を持っています。

お気軽にご来店ください!SHOP

店舗外観

すみはる商店

〒732-0052 広島県広島市東区光町1丁目6-30-102

営業時間:10:00〜18:00 定休日:水曜日・祝日

広島市東区・南区・安芸区、安芸郡の不動産情報はすみはる商店へ

HPを見たと言って、お気軽にお問い合わせください!

0120-859-869 0120-859-869

〒732-0052 広島県広島市東区光町1丁目6-30-102
営業時間:10:00〜18:00 定休日:水曜日・祝日

店内写真