1. ホーム
  2. 物件検索
  3. 物件詳細

新築一戸建て広島市南区旭2丁目【3号地】

1 /10

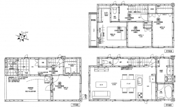
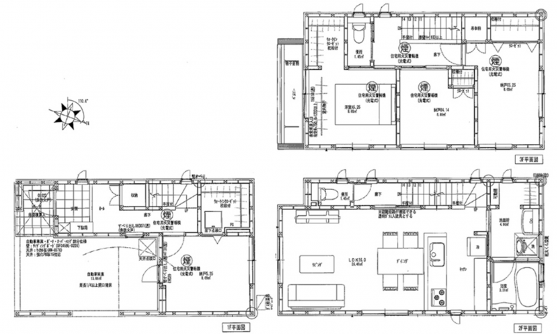
【間取り】

4,490万円

●旭町バス停歩3分!
●小学校近く
●都市型3階建
●収納充実の間取り
●ガス衣類乾燥機(乾太くん)設置!

物件概要

所在地
広島市南区旭2丁目【3号地】
価格
4,490 万円
交通

バス停旭町 まで 徒歩3分

接道状況
南東側3.5m
土地面積
65.04㎡ (19.67坪)
建物面積
98.94㎡ (29.92坪)
間取り
1LDK+3S
築年数
2025年 (令和7) 3月
築1年
建ぺい率
60%
容積率
200%
土地権利
構造および階数
地上3階建
小学校区
大河 (212m)
中学校区
翠町 (1079m)
私道負担
地目
現況
引渡時期
相談
駐車場
上水道
公共
下水道
公共
ガス
都市ガス
都市計画
用途地域
1種住居
設備・条件
システムキッチン、カウンターキッチン、ウォークインクローゼット、モニタ付インターホン
備考
▼工法:在来工法 施工:トータテハウジング
▼外構付
▼瑕疵担保保険付 フラット35S使用可能(但し、期限内に限ります)
▼カップボードあり
▼ガス衣類乾燥機(乾太くん)設置
▼3階2室エアコン取付
取引態様
仲介
周辺地図を確認する

(弊社管理番号: 3005450)

【更新日】2026年04月02日

【次回更新日】2026年05月02日

その他周辺物件

この物件は400の方が興味を持っています。

お気軽にご来店ください!SHOP

店舗外観

すみはる商店

〒732-0052 広島県広島市東区光町1丁目6-30-102

営業時間:10:00〜18:00 定休日:水曜日・祝日

広島市東区・南区・安芸区、安芸郡の不動産情報はすみはる商店へ

HPを見たと言って、お気軽にお問い合わせください!

0120-859-869 0120-859-869

〒732-0052 広島県広島市東区光町1丁目6-30-102
営業時間:10:00〜18:00 定休日:水曜日・祝日

店内写真