1. ホーム
  2. 物件検索
  3. 物件詳細

中古一戸建て安芸郡府中町瀬戸ハイム2丁目

1 /7

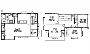
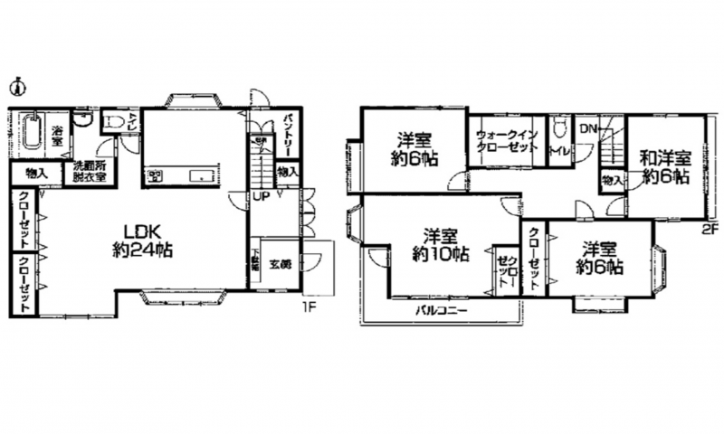
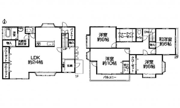
【間取り】

3,099万円

●小学校徒歩圏内 周辺に公園あり
●駐車2台可能
●24帖の広々としたLDK
●床下収納、パントリー、WICと大容量収納

物件概要

所在地
安芸郡府中町瀬戸ハイム2丁目
価格
3,099 万円
交通

バス停府中ニュータウン上 まで 徒歩3分

接道状況
東側 公道6m
土地面積
162.48㎡ (49.15坪)
建物面積
137.45㎡ (41.57坪)
間取り
4LDK
築年数
1989年 (平成元) 7月
築36年
建ぺい率
50%
容積率
100%
土地権利
構造および階数
木造瓦葺2階建 造
小学校区
府中東 (710m)
中学校区
府中 (1330m)
私道負担
地目
現況
引渡時期
即時
駐車場
2台
上水道
公共
下水道
公共
ガス
都市ガス
都市計画
用途地域
1種低層
設備・条件
システムキッチン、カウンターキッチン、食器洗浄乾燥機、シャンプードレッサー、追い焚き、ウォークインクローゼット、モニタ付インターホン、駐車場2台分、床下収納、トイレ2箇所
備考
▼2025年10月リフォーム完了:キッチン・お風呂・トイレ・洗面台新品、クロス・クッションフロア張替、フロアタイル張、コンロ新品、網戸張替、室内クリーニング、白蟻点検、給湯器・建具交換、外壁塗装、玄関ドア交換
▼両面バルコニーで日当たり良好▼パントリー
取引態様
仲介
周辺地図を確認する

(弊社管理番号: 3005455)

【更新日】2025年12月08日

【次回更新日】2026年02月08日

その他周辺物件

この物件は240の方が興味を持っています。

お気軽にご来店ください!SHOP

店舗外観

すみはる商店

〒732-0052 広島県広島市東区光町1丁目6-30-102

営業時間:10:00〜18:00 定休日:水曜日・祝日

広島市東区・南区・安芸区、安芸郡の不動産情報はすみはる商店へ

HPを見たと言って、お気軽にお問い合わせください!

0120-859-869 0120-859-869

〒732-0052 広島県広島市東区光町1丁目6-30-102
営業時間:10:00〜18:00 定休日:水曜日・祝日

店内写真