1. ホーム
  2. 物件検索
  3. 物件詳細

新築一戸建て広島市南区向洋新町2丁目2号地【 団地名 洋光台】

1 /4

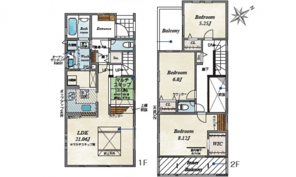
【間取り】

4,490万円

●制振ダンパー 耐震等級3の住宅性能評価 長期優良住宅
●全居室が角部屋・2面採光
●駐車場2台可能

物件概要

所在地
広島市南区向洋新町2丁目2号地【 団地名 洋光台】
価格
4,490 万円
交通

バス停洋光台団地北 まで 徒歩1分

接道状況
西側 公道8.9m
土地面積
125.83㎡ (38.06坪)
建物面積
105.78㎡ (31.99坪)
間取り
3LDK
築年数
2026年 (令和8) 3月
建ぺい率
60%
容積率
200%
土地権利
構造および階数
木造 地上2階建
小学校区
向洋新町 (803m)
中学校区
大州 (3500m)
私道負担
地目
現況
引渡時期
相談
駐車場
2台
上水道
公共
下水道
公共
ガス
都市ガス
都市計画
用途地域
1種中高
設備・条件
システムキッチン、カウンターキッチン、食器洗浄乾燥機、シャンプードレッサー、洗浄便座、浴室乾燥機、複層ガラス、モニタ付インターホン、駐車場2台分、床下収納、トイレ2箇所
備考
▼制振ダンパー 耐震等級3の住宅性能評価 長期優良住宅 エネルギー消費性能星3つ
▼無料点検実施(引渡後3ヶ月・2年・5年・10年)
▼浴室換気乾燥機 樹脂複合サッシ LED照明(玄関・廊下・キッチン等) 収納充実プラン
▼表記建物面積は、バルコニー部分5.69㎡含む
取引態様
仲介
周辺地図を確認する

(弊社管理番号: 3005466)

【更新日】2026年04月14日

【次回更新日】2026年05月14日

その他周辺物件

この物件は477の方が興味を持っています。

お気軽にご来店ください!SHOP

店舗外観

すみはる商店

〒732-0052 広島県広島市東区光町1丁目6-30-102

営業時間:10:00〜18:00 定休日:水曜日・祝日

広島市東区・南区・安芸区、安芸郡の不動産情報はすみはる商店へ

HPを見たと言って、お気軽にお問い合わせください!

0120-859-869 0120-859-869

〒732-0052 広島県広島市東区光町1丁目6-30-102
営業時間:10:00〜18:00 定休日:水曜日・祝日

店内写真