1. ホーム
  2. 物件検索
  3. 物件詳細

新築一戸建て広島市東区戸坂新町2丁目

NEW

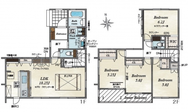
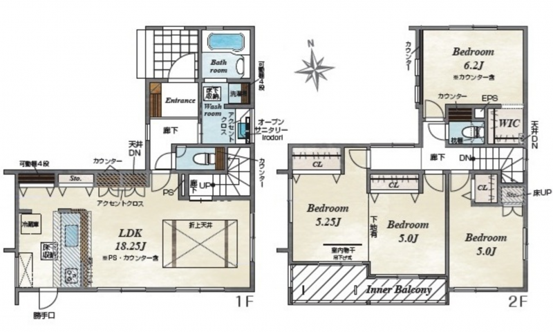
【間取り】

3,190万円

◎オール電化住宅・長期優良住宅
◎駐車2台可能

物件概要

所在地
広島市東区戸坂新町2丁目
価格
3,190 万円
交通

バス停東浄ショッピングセンター前 まで 徒歩2分

土地面積
146.36㎡ (44.27坪)
建物面積
107.17㎡ (32.41坪)
間取り
3LDK
築年数
2026年 (令和8) 4月
建ぺい率
60%
容積率
200%
土地権利
構造および階数
木造 地上2階建
小学校区
東浄 (683m)
中学校区
戸坂 (967m)
私道負担
地目
現況
引渡時期
相談
駐車場
2台
上水道
公共
下水道
公共
ガス
都市計画
用途地域
2種中高
設備・条件
システムキッチン、カウンターキッチン、食器洗浄乾燥機、IHクッキングヒーター、オール電化、シャンプードレッサー、洗浄便座、浴室乾燥機、ウォークインクローゼット、モニタ付インターホン、駐車場2台分、トイレ2箇所
備考
▼制振ダンパー 耐震等級3の住宅性能評価 長期優良住宅 エネルギー消費性能星3つ
▼無料点検実施(引渡後3ヶ月・2年・5年・10年)
▼浴室換気乾燥機 収納充実プラン 樹脂複合サッシ LED照明(玄関・廊下・キッチン等) 太陽光パネル搭載(月額利用料要) 表記建物面積にバルコニー約6.56㎡含む
取引態様
仲介
周辺地図を確認する

(弊社管理番号: 3005468)

【更新日】2025年12月11日

【次回更新日】2026年01月11日

その他周辺物件

この物件は9の方が興味を持っています。

お気軽にご来店ください!SHOP

店舗外観

すみはる商店

〒732-0052 広島県広島市東区光町1丁目6-30-102

営業時間:10:00〜18:00 定休日:水曜日・祝日

広島市東区・南区・安芸区、安芸郡の不動産情報はすみはる商店へ

HPを見たと言って、お気軽にお問い合わせください!

0120-859-869 0120-859-869

〒732-0052 広島県広島市東区光町1丁目6-30-102
営業時間:10:00〜18:00 定休日:水曜日・祝日

店内写真