1. ホーム
  2. 物件検索
  3. 物件詳細

新築一戸建て広島市南区北大河町

1 /10

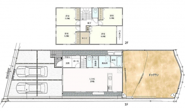
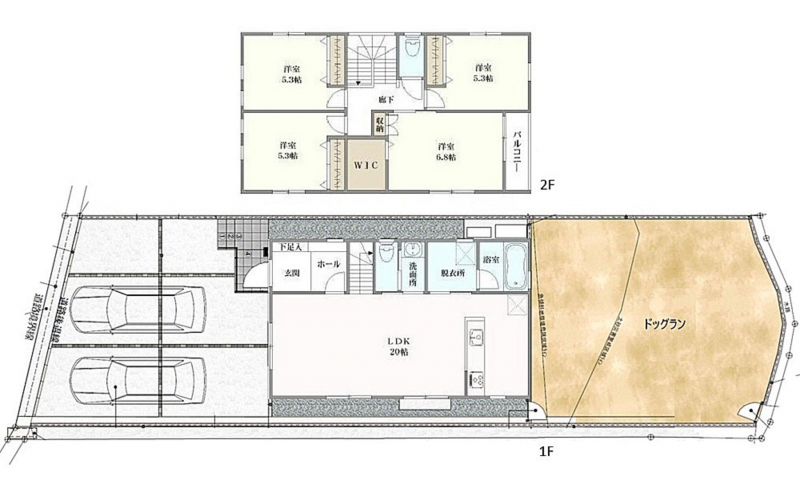
【間取り】

3,980万円

◎20帖の広いLDK!
◎駐車3台可能!
◎広々庭つき ドッグラン、家庭菜園なども可能!

物件概要

所在地
広島市南区北大河町
価格
3,980 万円
交通

バス停旭町 まで 徒歩5分

接道状況
北西側3m 間口約8.1m
土地面積
204.43㎡ (61.84坪)
建物面積
101.85㎡ (30.80坪)
間取り
4LDK
築年数
2025年 (令和7) 9月
建ぺい率
50%
容積率
100%
土地権利
構造および階数
木造 地上2階建
小学校区
黄金山 (660m)
中学校区
仁保
私道負担
地目
現況
引渡時期
相談
駐車場
3台
上水道
公共
下水道
公共
ガス
都市ガス
都市計画
用途地域
1種低層
設備・条件
システムキッチン、カウンターキッチン、食器洗浄乾燥機、IHクッキングヒーター、オール電化、シャンプードレッサー、洗浄便座、浴室乾燥機、複層ガラス、ウォークインクローゼット、モニタ付インターホン、駐車場3台分、床下収納、エコキュート、トイレ2箇所
備考
▼裏庭のスペースにドッグラン有(家庭菜園なども可能です)
▼駐車3台可(車種による)
▼電化住宅 IH・エコキュート
▼照明付き(調光リモコン付き ダウンライトを除く)
▼大学病院まで約600m(徒歩8分)
▼マルショク旭町店約200m(徒歩3分)
▼敷地内の東側、南側に水路有り
取引態様
仲介
周辺地図を確認する

(弊社管理番号: 3005469)

【更新日】2026年04月02日

【次回更新日】2026年05月02日

その他周辺物件

この物件は385の方が興味を持っています。

お気軽にご来店ください!SHOP

店舗外観

すみはる商店

〒732-0052 広島県広島市東区光町1丁目6-30-102

営業時間:10:00〜18:00 定休日:水曜日・祝日

広島市東区・南区・安芸区、安芸郡の不動産情報はすみはる商店へ

HPを見たと言って、お気軽にお問い合わせください!

0120-859-869 0120-859-869

〒732-0052 広島県広島市東区光町1丁目6-30-102
営業時間:10:00〜18:00 定休日:水曜日・祝日

店内写真