1. ホーム
  2. 物件検索
  3. 物件詳細

新築一戸建て広島市南区東雲3丁目

NEW
1 /2

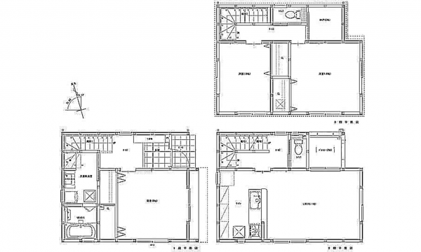
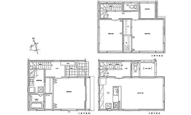
【間取り】

4,980万円

●人気東雲エリア!
●3LDK+S
●3階建のオール電化住宅・2帖納戸付!

物件概要

所在地
広島市南区東雲3丁目
価格
4,980 万円
交通

バス停東雲 まで 徒歩5分

接道状況
東側 公道7.8m
土地面積
76.38㎡ (23.10坪)
建物面積
105.99㎡ (32.06坪)
間取り
3LDK+S
築年数
2026年 (令和8) 5月
建ぺい率
60%
容積率
200%
土地権利
構造および階数
木造 地上3階建
小学校区
比治山
中学校区
段原
私道負担
地目
現況
引渡時期
相談
駐車場
上水道
公共
下水道
公共
ガス
都市計画
用途地域
準工業
設備・条件
システムキッチン、カウンターキッチン、食器洗浄乾燥機、IHクッキングヒーター、オール電化、洗浄便座、浴室乾燥機、複層ガラス、モニタ付インターホン、エコキュート、トイレ2箇所
備考
▼木造在来工法 省令準耐火構造 ベタ基礎
▼フラット35S(金利Bプラン)対応
▼居室窓Low-Eペアガラス 玄関電気錠システム
▼EV自動車用回路 浴室換気乾燥暖房機
▼徒歩圏内にスーパーやドラッグストア、飲食店が充実しています
▼平地
取引態様
仲介
周辺地図を確認する

(弊社管理番号: 3005501)

【更新日】2026年01月13日

【次回更新日】2026年02月13日

その他周辺物件

この物件は13の方が興味を持っています。

お気軽にご来店ください!SHOP

店舗外観

すみはる商店

〒732-0052 広島県広島市東区光町1丁目6-30-102

営業時間:10:00〜18:00 定休日:水曜日・祝日

広島市東区・南区・安芸区、安芸郡の不動産情報はすみはる商店へ

HPを見たと言って、お気軽にお問い合わせください!

0120-859-869 0120-859-869

〒732-0052 広島県広島市東区光町1丁目6-30-102
営業時間:10:00〜18:00 定休日:水曜日・祝日

店内写真