1. ホーム
  2. 物件検索
  3. 物件詳細

新築一戸建て広島市東区山根町【A棟】

1 /2

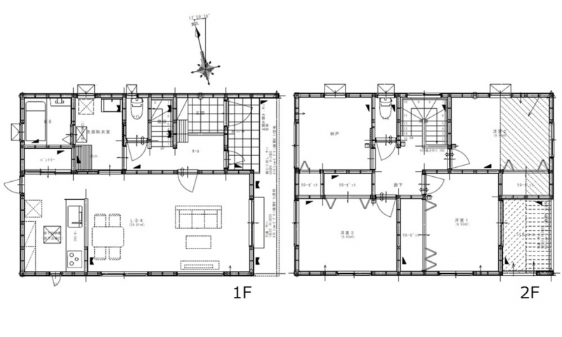
【間取り】

4,790万円

◎約52坪の広々とした敷地
◎パントリーなど収納充実の間取り♪
◎安心安全なオール電化エコキュート仕様のお家
◎ショージ牛田店まで徒歩10分

物件概要

所在地
広島市東区山根町【A棟】
価格
4,790 万円
交通

山陽本線 広島駅 まで 徒歩19分

接道状況
東側6.5m
土地面積
174.32㎡ (52.73坪)
建物面積
102.67㎡ (31.05坪)
間取り
3SLDK
築年数
2025年 (令和7) 8月
建ぺい率
60%
容積率
200%
土地権利
構造および階数
地上2階建
小学校区
尾長 (1271m)
中学校区
二葉 (1119m)
私道負担
地目
現況
引渡時期
相談
駐車場
2台
上水道
公共
下水道
公共
ガス
都市計画
用途地域
2種中高
設備・条件
システムキッチン、カウンターキッチン、食器洗浄乾燥機、IHクッキングヒーター、オール電化、シャンプードレッサー、洗浄便座、浴室乾燥機、複層ガラス、駐車場2台分、床下収納、エコキュート、トイレ2箇所
備考
▼ショージ牛田店徒歩10分
▼マックスバリュエクスプレス広島駅北口店徒歩16分
▼ゆめマート二葉の里徒歩19分
▼ローソン広島女学院大学前店徒歩12分
▼ウォンツ光町店徒歩13分
取引態様
仲介
周辺地図を確認する

(弊社管理番号: 3005514)

【更新日】2026年01月24日

【次回更新日】2026年02月24日

その他周辺物件

この物件は127の方が興味を持っています。

お気軽にご来店ください!SHOP

店舗外観

すみはる商店

〒732-0052 広島県広島市東区光町1丁目6-30-102

営業時間:10:00〜18:00 定休日:水曜日・祝日

広島市東区・南区・安芸区、安芸郡の不動産情報はすみはる商店へ

HPを見たと言って、お気軽にお問い合わせください!

0120-859-869 0120-859-869

〒732-0052 広島県広島市東区光町1丁目6-30-102
営業時間:10:00〜18:00 定休日:水曜日・祝日

店内写真