1. ホーム
  2. 物件検索
  3. 物件詳細

新築一戸建て安芸郡府中町桃山2丁目【1号地】

1 /9

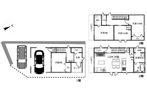
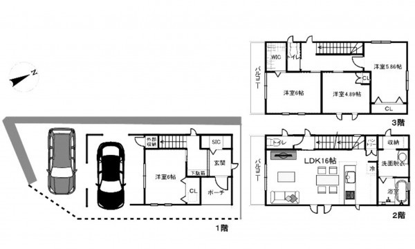
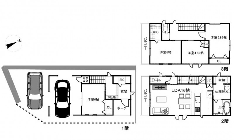
【間取り】

4,880万円

●JR向洋駅まで徒歩3分
●南側道路面す
●スーパー 徒歩10分以内

物件概要

所在地
安芸郡府中町桃山2丁目【1号地】
価格
4,880 万円
交通

山陽本線 向洋駅 まで 徒歩3分

接道状況
南側 公道4m
土地面積
85.51㎡ (25.86坪)
建物面積
104.33㎡ (31.55坪)
間取り
4LDK
築年数
建ぺい率
60%
容積率
200%
土地権利
構造および階数
木造 地上3階建
小学校区
府中南 (809m)
中学校区
府中緑ヶ丘 (1568m)
私道負担
地目
宅地
現況
引渡時期
相談
駐車場
2台
上水道
公共
下水道
公共
ガス
都市ガス
都市計画
用途地域
1種中高
設備・条件
システムキッチン、カウンターキッチン、複層ガラス、ウォークインクローゼット、駐車場2台分、トイレ2箇所
備考
▼フラット35S(金利Aプラン)
▼ZEH水準省エネ住宅
▼売建
取引態様
仲介
周辺地図を確認する

(弊社管理番号: 3005535)

【更新日】2026年04月11日

【次回更新日】2026年05月11日

その他周辺物件

この物件は106の方が興味を持っています。

お気軽にご来店ください!SHOP

店舗外観

すみはる商店

〒732-0052 広島県広島市東区光町1丁目6-30-102

営業時間:10:00〜18:00 定休日:水曜日・祝日

広島市東区・南区・安芸区、安芸郡の不動産情報はすみはる商店へ

HPを見たと言って、お気軽にお問い合わせください!

0120-859-869 0120-859-869

〒732-0052 広島県広島市東区光町1丁目6-30-102
営業時間:10:00〜18:00 定休日:水曜日・祝日

店内写真