1. ホーム
  2. 物件検索
  3. 物件詳細

中古一戸建て広島市南区向洋新町1丁目【 団地名 向洋ニュータウン洋光台】

1 /2

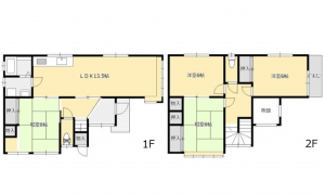
【間取り】

2,160万円

●向洋新町1丁目の中古戸建て
●オール電化
●4LDK

物件概要

所在地
広島市南区向洋新町1丁目【 団地名 向洋ニュータウン洋光台】
価格
2,160 万円
交通

バス停向洋新町1丁目 まで 徒歩2分

接道状況
西側 公道6m 間口約22.5m
土地面積
120.33㎡ (36.39坪)
建物面積
93.56㎡ (28.30坪)
間取り
4LDK
築年数
1990年 (平成2) 7月
築35年
建ぺい率
60%
容積率
200%
土地権利
構造および階数
木造 地上2階建
小学校区
向洋新町 (535m)
中学校区
大州 (3704m)
私道負担
地目
現況
引渡時期
即時
駐車場
1台
上水道
下水道
ガス
都市計画
用途地域
2種中高
設備・条件
システムキッチン、IHクッキングヒーター、オール電化、シャンプードレッサー、洗浄便座、浴室乾燥機、トイレ2箇所
備考
▼小学校・スーパー・バス停徒歩圏内 
▼駐車場1台可 
▼リフォーム歴:2020年頃1階トイレ交換工事済 
▼2018年4月外壁・塗装工事
▼2010年4月浴室
取引態様
仲介
周辺地図を確認する

(弊社管理番号: 3005573)

【更新日】2026年03月19日

【次回更新日】2026年04月19日

その他周辺物件

この物件は113の方が興味を持っています。

お気軽にご来店ください!SHOP

店舗外観

すみはる商店

〒732-0052 広島県広島市東区光町1丁目6-30-102

営業時間:10:00〜18:00 定休日:水曜日・祝日

広島市東区・南区・安芸区、安芸郡の不動産情報はすみはる商店へ

HPを見たと言って、お気軽にお問い合わせください!

0120-859-869 0120-859-869

〒732-0052 広島県広島市東区光町1丁目6-30-102
営業時間:10:00〜18:00 定休日:水曜日・祝日

店内写真