1. ホーム
  2. 物件検索
  3. 物件詳細

新築一戸建て広島市南区山城町

1 /2

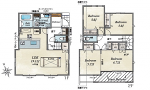
【間取り】

5,890万円

●角地
●19.12帖の広々としたリビング
●12帖洋室は間仕切りし2部屋としても使えます

物件概要

所在地
広島市南区山城町
価格
5,890 万円
交通

バス停旭町 まで 徒歩5分

接道状況
北側 公道3.8m
南西側 公道3.8m
土地面積
116.19㎡ (35.14坪)
建物面積
106.81㎡ (32.31坪)
間取り
3LDK
築年数
2026年 (令和8) 7月
建ぺい率
60%
容積率
200%
土地権利
構造および階数
木造 地上2階建
小学校区
大河 (702m)
中学校区
翠町 (743m)
私道負担
地目
現況
引渡時期
相談
駐車場
2台
上水道
公共
下水道
公共
ガス
都市計画
用途地域
1種住居
設備・条件
システムキッチン、カウンターキッチン、食器洗浄乾燥機、IHクッキングヒーター、オール電化、シャンプードレッサー、洗浄便座、浴室乾燥機、モニタ付インターホン、駐車場2台分、トイレ2箇所
備考
▼制振ダンパー
▼耐震等級3の住宅性能評価
▼長期優良住宅
▼エネルギー消費性能星3つ
▼無料点検実施(引渡後3ヶ月・2年・5年・10年)
▼オール電化▼食洗乾燥機 浴室換気乾燥機
▼樹脂複合サッシ
▼LED照明(玄関・廊下・キッチン等)
▼収納充実プラン
▼太陽光パネル搭載(10年間売電収入なし)
取引態様
仲介
周辺地図を確認する

(弊社管理番号: 3005591)

【更新日】2026年04月14日

【次回更新日】2026年05月14日

その他周辺物件

この物件は43の方が興味を持っています。

お気軽にご来店ください!SHOP

店舗外観

すみはる商店

〒732-0052 広島県広島市東区光町1丁目6-30-102

営業時間:10:00〜18:00 定休日:水曜日・祝日

広島市東区・南区・安芸区、安芸郡の不動産情報はすみはる商店へ

HPを見たと言って、お気軽にお問い合わせください!

0120-859-869 0120-859-869

〒732-0052 広島県広島市東区光町1丁目6-30-102
営業時間:10:00〜18:00 定休日:水曜日・祝日

店内写真