1. ホーム
  2. 物件検索
  3. 物件詳細

中古一戸建て広島市東区上温品3丁目

商談中
1 /2

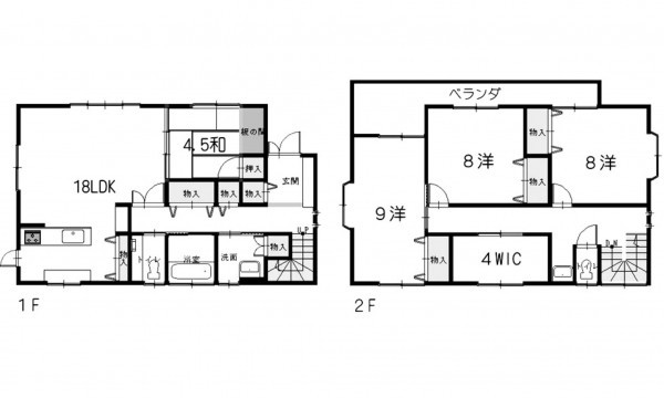
【間取り】

****万円

●約102坪の広々とした敷地
●駐車4台分可能!
●ガーデニングや畑など楽しめるスペース有り♪
●安心安全なオール電化エコキュート仕様のお家

物件概要

所在地
広島市東区上温品3丁目
価格
**** 万円
交通

バス停上温品北 まで 徒歩3分

接道状況
西側 公道5.4m
北側4m
土地面積
340.05㎡ (102.86坪)
建物面積
138.82㎡ (41.99坪)
間取り
4LDK
築年数
2013年 (平成25) 1月
築13年
建ぺい率
50%
容積率
100%
土地権利
構造および階数
木造かわらぶき2階建 造
小学校区
上温品 (824m)
中学校区
温品 (1195m)
私道負担
地目
現況
引渡時期
即時
駐車場
4台
上水道
公共
下水道
公共
ガス
都市計画
用途地域
1種低層
設備・条件
システムキッチン、カウンターキッチン、食器洗浄乾燥機、オール電化、ウォークインクローゼット、駐車場3台分、エコキュート、トイレ2箇所
備考
▼オール電化住宅 エコキュート▼IHクッキングヒーター3口 ペアガラス▼ビルトイン食洗器 カップボード▼作り付けテレビ台
▼カーポート
▼収納たっぷり
▼カーテン▼廊下広い
▼別荘として注文建築され、殆ど利用されなかった為、綺麗な物件です
▼駐車場広く、スーパー藤三、バス停近く、広々とした庭で畑や趣味など出来ます
取引態様
仲介
周辺地図を確認する

(弊社管理番号: 3005594)

【更新日】2026年04月11日

【次回更新日】2026年05月11日

その他周辺物件

この物件は29の方が興味を持っています。

お気軽にご来店ください!SHOP

店舗外観

すみはる商店

〒732-0052 広島県広島市東区光町1丁目6-30-102

営業時間:10:00〜18:00 定休日:水曜日・祝日

広島市東区・南区・安芸区、安芸郡の不動産情報はすみはる商店へ

HPを見たと言って、お気軽にお問い合わせください!

0120-859-869 0120-859-869

〒732-0052 広島県広島市東区光町1丁目6-30-102
営業時間:10:00〜18:00 定休日:水曜日・祝日

店内写真