1. ホーム
  2. 物件検索
  3. 物件詳細

新築一戸建て広島市南区青崎1丁目【2号地】

NEW
1 /2

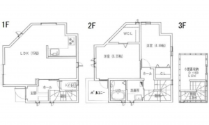
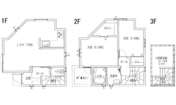
【間取り】

3,180万円

●ZEH基準の家!
●JR向洋駅まで徒歩9分の好立地!

物件概要

所在地
広島市南区青崎1丁目【2号地】
価格
3,180 万円
交通

JR呉線 向洋駅 まで 徒歩9分

バス停青崎小学校前 まで 徒歩4分

接道状況
西側 公道4.8m 間口約2.7m
土地面積
63.65㎡ (19.25坪)
建物面積
63.78㎡ (19.29坪)
間取り
2SLDK
築年数
2026年 (令和8) 3月
建ぺい率
60%
容積率
200%
土地権利
構造および階数
木造 地上3階建
小学校区
青崎 (317m)
中学校区
大州
私道負担
地目
現況
引渡時期
相談
駐車場
1台
上水道
公共
下水道
公共
ガス
都市計画
用途地域
1種住居
設備・条件
システムキッチン、カウンターキッチン、食器洗浄乾燥機、IHクッキングヒーター、オール電化、シャンプードレッサー、洗浄便座、浴室乾燥機、複層ガラス、ウォークインクローゼット、モニタ付インターホン、床下収納、エコキュート
備考
▼ZEH基準適合住宅
▼断熱性能等級5
▼一次エネルギー消費量等級6
▼オール電化エコキュート
取引態様
仲介
周辺地図を確認する

(弊社管理番号: 3005621)

【更新日】2026年04月20日

【次回更新日】2026年05月20日

その他周辺物件

この物件は3の方が興味を持っています。

お気軽にご来店ください!SHOP

店舗外観

すみはる商店

〒732-0052 広島県広島市東区光町1丁目6-30-102

営業時間:10:00〜18:00 定休日:水曜日・祝日

広島市東区・南区・安芸区、安芸郡の不動産情報はすみはる商店へ

HPを見たと言って、お気軽にお問い合わせください!

0120-859-869 0120-859-869

〒732-0052 広島県広島市東区光町1丁目6-30-102
営業時間:10:00〜18:00 定休日:水曜日・祝日

店内写真