1. ホーム
  2. 物件検索
  3. 物件詳細

マンションヴェルディ天神川駅前

1 /13

4,980万円

◆築1年マンション!
◆JR天神川駅歩1分!!
◆ペット飼育可!

物件概要

所在地
広島市南区大州4丁目
価格
4,980 万円
交通

山陽本線 天神川駅 まで 徒歩1分

専有面積
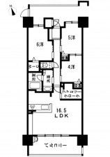
71.30㎡
バルコニー
12.60㎡ (南側)
間取り
3LDK
所在階/階数
1階 / 14階
築年数
2024年 (令和6) 5月
築1年
建ぺい率
容積率
土地権利
構造および階数
RC(鉄筋コンクリート) 造 地上14階建
総戸数
小学校区
大州 (701m)
中学校区
大州 (972m)
地目
現況
引渡時期
相談
駐車場
駐車場月額
管理形態
管理方式
管理人日勤
管理会社
(株)穴吹コミュニティ
管理費
13,100円
修繕積立費
2,990円
上水道
下水道
ガス
都市ガス
都市計画
用途地域
工業
設備・条件
システムキッチン、カウンターキッチン、食器洗浄乾燥機、シャンプードレッサー、洗浄便座、浴室乾燥機、ウォークインクローゼット、モニタ付インターホン、ペット可
備考
▼天神川駅まで徒歩1分の好立地▼イオンモール広島府中まで徒歩11分
▼ファミリークローゼット、ウォークインクローゼット、収納充実のプラン▼全居室収納あり
▼全居室フローリング
▼ウォンツ大州店徒歩9分

駐車場:平面1台有り(無料)引継不可
内法面積:67.46㎡
取引態様
仲介
周辺地図を確認する

(弊社管理番号: 5003025)

【更新日】2025年12月19日

【次回更新日】2026年01月19日

その他周辺物件

この物件は347の方が興味を持っています。

お気軽にご来店ください!SHOP

店舗外観

すみはる商店

〒732-0052 広島県広島市東区光町1丁目6-30-102

営業時間:10:00〜18:00 定休日:水曜日・祝日

広島市東区・南区・安芸区、安芸郡の不動産情報はすみはる商店へ

HPを見たと言って、お気軽にお問い合わせください!

0120-859-869 0120-859-869

〒732-0052 広島県広島市東区光町1丁目6-30-102
営業時間:10:00〜18:00 定休日:水曜日・祝日

店内写真