1. ホーム
  2. 物件検索
  3. 物件詳細

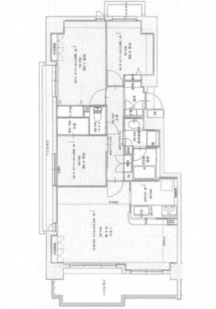
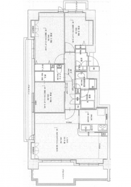
マンションパークハウス東山公園の街弐番館

3,180万円

◎リフォーム物件!
◎角部屋
◎設備充実
◎ペット可

物件概要

所在地
広島市東区東山町
価格
3,180 万円
交通

バス停矢賀入口 まで 徒歩5分

山陽本線 天神川駅 まで 徒歩17分

専有面積
73.69㎡
バルコニー
15.08㎡
間取り
3LDK
所在階/階数
2階 / 14階
築年数
1997年 (平成9) 2月
築29年
建ぺい率
容積率
土地権利
構造および階数
SRC(鉄骨鉄筋コンクリート) 造 地上14階建
総戸数
101戸
小学校区
矢賀 (976m)
中学校区
二葉 (1159m)
地目
現況
引渡時期
即時
駐車場
駐車場月額
8,500円/月
管理形態
全部委託
管理方式
管理人日勤
管理会社
三菱地所コミュニティ(株)
管理費
7,600円
修繕積立費
9,900円
上水道
下水道
ガス
都市ガス
都市計画
用途地域
2種住居
設備・条件
システムキッチン、カウンターキッチン、食器洗浄乾燥機、IHクッキングヒーター、シャンプードレッサー、洗浄便座、浴室乾燥機、追い焚き、モニタ付インターホン、オートロック、ペット可、角部屋、エレベーター
備考
▼2026年1月リフォーム 水回り:キッチン、浴室、トイレ、洗面所 内装:全室クロス張替、床(フローリング等)、壁・天井(クロス・塗装等)、建具(室内ドア等)
▼角部屋 日当たり良好
▼浴室暖房乾燥機 オートバス 追焚機能 宅配BOX
▼シャワー付洗面化粧台 3口以上コンロ 食器洗浄乾燥機 モニター付オートロック 全居室収納
▼来客用駐車場

駐輪場・バイク置場:有
ペット飼育:小型犬可 猫可
取引態様
仲介
周辺地図を確認する

(弊社管理番号: 5003282)

【更新日】2026年01月23日

【次回更新日】2026年04月23日

その他周辺物件

この物件は316の方が興味を持っています。

お気軽にご来店ください!SHOP

店舗外観

すみはる商店

〒732-0052 広島県広島市東区光町1丁目6-30-102

営業時間:10:00〜18:00 定休日:水曜日・祝日

広島市東区・南区・安芸区、安芸郡の不動産情報はすみはる商店へ

HPを見たと言って、お気軽にお問い合わせください!

0120-859-869 0120-859-869

〒732-0052 広島県広島市東区光町1丁目6-30-102
営業時間:10:00〜18:00 定休日:水曜日・祝日

店内写真