1. ホーム
  2. 物件検索
  3. 物件詳細

マンションライオンズマンション比治山南

1 /13

2,780万円

●広島大学病院徒歩圏内
●ゆめタウン広島も自転車圏内

物件概要

所在地
広島市南区出汐2丁目
価格
2,780 万円
交通

バス停出汐三丁目 まで 徒歩1分

広島電鉄皆実線 南区役所前駅 まで 徒歩13分

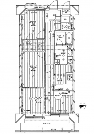
専有面積
60.81㎡
バルコニー
9.25㎡ (東側)
間取り
2LDK
所在階/階数
3階 / 10階
築年数
2000年 (平成12) 7月
築25年
建ぺい率
容積率
土地権利
構造および階数
RC(鉄筋コンクリート) 造 地上10階建
総戸数
45戸
小学校区
大河
中学校区
翠町
地目
現況
引渡時期
即時
駐車場
駐車場月額
管理形態
全部委託
管理方式
管理人日勤
管理会社
(株)大京アステージ
管理費
10,000円
修繕積立費
12,770円
上水道
下水道
ガス
都市計画
用途地域
近隣商業
設備・条件
システムキッチン、カウンターキッチン、シャンプードレッサー、洗浄便座、浴室乾燥機、床暖房、ウォークインクローゼット
備考
▼広島駅・八丁堀へ直通 広島大学病院徒歩圏内
▼医療と教育が充実した安心の文教エリア
▼国道2号線へのアクセス良好
▼車もバスも便利な行動拠点
▼ゆめタウン広島も自転車圏内
▼利便性と落ち着きを兼ね備えた好立地
▼床暖房
取引態様
仲介
周辺地図を確認する

(弊社管理番号: 5003343)

【更新日】2026年03月08日

【次回更新日】2026年05月08日

その他周辺物件

この物件は51の方が興味を持っています。

お気軽にご来店ください!SHOP

店舗外観

すみはる商店

〒732-0052 広島県広島市東区光町1丁目6-30-102

営業時間:10:00〜18:00 定休日:水曜日・祝日

広島市東区・南区・安芸区、安芸郡の不動産情報はすみはる商店へ

HPを見たと言って、お気軽にお問い合わせください!

0120-859-869 0120-859-869

〒732-0052 広島県広島市東区光町1丁目6-30-102
営業時間:10:00〜18:00 定休日:水曜日・祝日

店内写真