1. ホーム
  2. 物件検索
  3. 物件詳細

マンションペルル中山南

商談中
1 /11

****万円

●JR矢賀駅徒歩11分
●フルリノベ―ション
●南東向きの最上階角部屋

物件概要

所在地
広島市東区中山南1丁目
価格
**** 万円
交通

芸備線 矢賀駅 まで 徒歩11分

バス停中山踏切 まで 徒歩2分

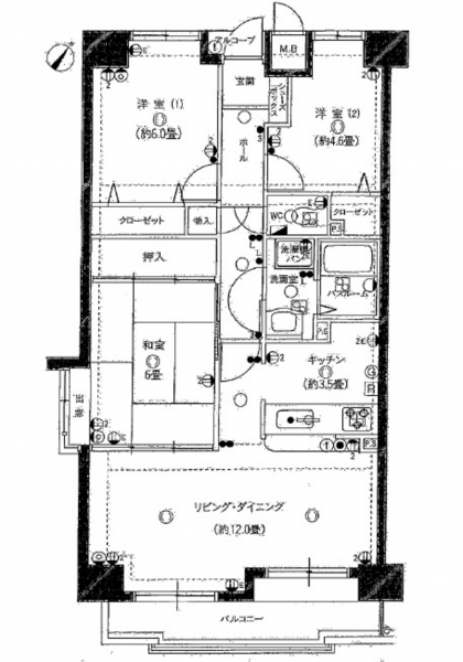
専有面積
73.55㎡
バルコニー
8.67㎡ (南東側)
間取り
3LDK
所在階/階数
8階 / 8階
築年数
1992年 (平成4) 8月
築33年
建ぺい率
容積率
土地権利
構造および階数
RC(鉄筋コンクリート) 造 地上8階建
総戸数
56戸
小学校区
中山 (810m)
中学校区
二葉 (1735m)
地目
現況
引渡時期
相談
駐車場
空無
駐車場月額
管理形態
全部委託
管理方式
管理会社
日本ハウズイング(株)
管理費
6,700円
修繕積立費
11,770円
上水道
下水道
ガス
プロパン集中
都市計画
用途地域
1種住居
設備・条件
システムキッチン、カウンターキッチン、シャンプードレッサー、洗浄便座、角部屋、エレベーター
備考
▼令和8年5月初旬フルリノベーション完了予定:クロス全面・フローリング・建具全て・玄関タイルフロアー・下駄箱・システムキッチン(3口ガスコンロ)・換気扇・ユニットバス・ハンドシャワー付洗面化粧台・洗濯パン・トイレ(ウォシュレット付)・クローゼット 
▼南東向最上階角部屋
▼マックスバリュフォレオ広島東店まで徒歩7分 ローソン中山南店まで徒歩1分

駐車場:8,000円・10,000円(外部) 空き区画が出れば抽選
バイク置場:300円 駐輪場:300円(初回のみ) 内法面積:69.54㎡
取引態様
仲介
周辺地図を確認する

(弊社管理番号: 5003354)

【更新日】2026年04月06日

【次回更新日】2026年05月06日

その他周辺物件

この物件は38の方が興味を持っています。

お気軽にご来店ください!SHOP

店舗外観

すみはる商店

〒732-0052 広島県広島市東区光町1丁目6-30-102

営業時間:10:00〜18:00 定休日:水曜日・祝日

広島市東区・南区・安芸区、安芸郡の不動産情報はすみはる商店へ

HPを見たと言って、お気軽にお問い合わせください!

0120-859-869 0120-859-869

〒732-0052 広島県広島市東区光町1丁目6-30-102
営業時間:10:00〜18:00 定休日:水曜日・祝日

店内写真