1. ホーム
  2. 物件検索
  3. 物件詳細

マンションロイヤルクリスタル東本浦

1 /9

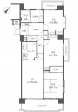
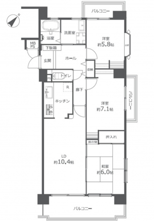
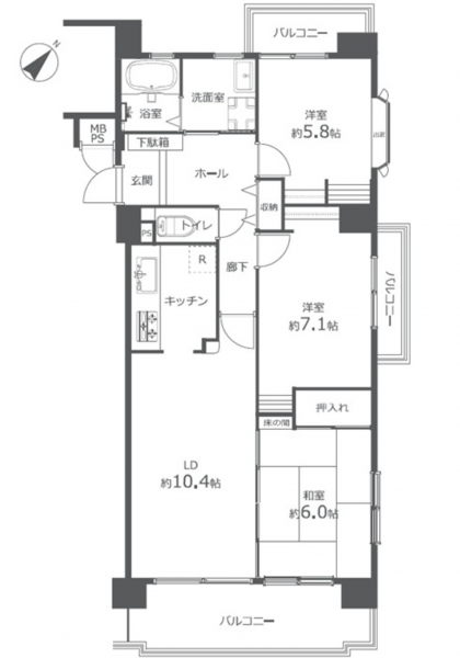
【間取り】

3,199万円

●角住戸
●リフォーム完了物件!

物件概要

所在地
広島市南区東本浦町
価格
3,199 万円
交通

バス停東本浦 まで 徒歩1分

専有面積
71.57㎡
バルコニー
14.54㎡ (南東側)
間取り
3LDK
所在階/階数
3階 / 6階
築年数
1995年 (平成7) 4月
築31年
建ぺい率
容積率
土地権利
構造および階数
RC(鉄筋コンクリート) 造 地上6階建
総戸数
26戸
小学校区
仁保 (312m)
中学校区
仁保 (929m)
地目
現況
引渡時期
相談 令和6年12月中旬以降
駐車場
空有
駐車場月額
14,000円/月
管理形態
全部委託
管理方式
管理人日勤
管理会社
日本ハウズイング(株)
管理費
9,300円
修繕積立費
12,880円
上水道
下水道
ガス
都市ガス
都市計画
用途地域
近隣商業 (一部1種住居を含む)
設備・条件
システムキッチン、洗浄便座、浴室乾燥機、オートロック、角部屋
備考
▼2025年12月リフォーム完了:システムキッチン・ユニットバス・洗面化粧台・洗濯機防水パン・温水洗浄機能付トイレ・建具新規交換、浴室乾燥機・LEDセンサーライト・LEDダウンライト新規設置、フローリング・クロス張替、カーテンレール交換、ハウスクリーニング他
▼住宅ローン控除・フラット35適合
▼あんしん既存住宅売買瑕疵保険加入
▼新耐震基準
▼オートロック
▼高温差し湯式
▼角住戸
▼バス停目の前(徒歩1分)

駐輪場・バイク置場:フリースペース
敷地内駐車場:月額14,000円 空有(R7年10月27日現在)
近隣駐車場:月額12,000円(近隣平面駐車場確保済)
取引態様
仲介
周辺地図を確認する

(弊社管理番号: 5003366)

【更新日】2026年04月11日

【次回更新日】2026年05月11日

その他周辺物件

この物件は42の方が興味を持っています。

お気軽にご来店ください!SHOP

店舗外観

すみはる商店

〒732-0052 広島県広島市東区光町1丁目6-30-102

営業時間:10:00〜18:00 定休日:水曜日・祝日

広島市東区・南区・安芸区、安芸郡の不動産情報はすみはる商店へ

HPを見たと言って、お気軽にお問い合わせください!

0120-859-869 0120-859-869

〒732-0052 広島県広島市東区光町1丁目6-30-102
営業時間:10:00〜18:00 定休日:水曜日・祝日

店内写真