1. ホーム
  2. 物件検索
  3. 物件詳細

マンションパルハイツ東雲

1 /9

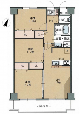
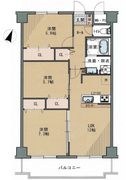
【間取り】

2,480万円

●フルリノベーション完了!
●スーパー徒歩3分!

物件概要

所在地
広島市南区東雲2丁目
価格
2,480 万円
交通

バス停市立工業高校前 まで 徒歩4分

バス停東雲2丁目 まで 徒歩4分

専有面積
70.20㎡
バルコニー
9.45㎡ (南東側)
間取り
3LDK
所在階/階数
7階 / 12階
築年数
1983年 (昭和58) 10月
築42年
建ぺい率
容積率
土地権利
構造および階数
SRC(鉄骨鉄筋コンクリート) 造 地上12階建
総戸数
66戸
小学校区
比治山 (1060m)
中学校区
段原 (917m)
地目
現況
引渡時期
即時
駐車場
空無
駐車場月額
管理形態
全部委託
管理方式
管理人日勤
管理会社
(株)合人社計画研究所
管理費
7,200円
修繕積立費
4,280円
上水道
下水道
ガス
都市計画
用途地域
準工業
設備・条件
システムキッチン、カウンターキッチン、シャンプードレッサー、洗浄便座、エレベーター
備考
▼令和8年1月フルリノベーション済
▼リビングにエアコン1台設置済
取引態様
仲介
周辺地図を確認する

(弊社管理番号: 5003377)

【更新日】2026年04月11日

【次回更新日】2026年05月11日

その他周辺物件

この物件は26の方が興味を持っています。

お気軽にご来店ください!SHOP

店舗外観

すみはる商店

〒732-0052 広島県広島市東区光町1丁目6-30-102

営業時間:10:00〜18:00 定休日:水曜日・祝日

広島市東区・南区・安芸区、安芸郡の不動産情報はすみはる商店へ

HPを見たと言って、お気軽にお問い合わせください!

0120-859-869 0120-859-869

〒732-0052 広島県広島市東区光町1丁目6-30-102
営業時間:10:00〜18:00 定休日:水曜日・祝日

店内写真