1. ホーム
  2. 物件検索
  3. 物件詳細

マンションライオンズヒルズ牛田早稲田

NEW
1 /14

1,280万円

◎専用庭のある住戸
◎小学校まで 徒歩5分

物件概要

所在地
広島市東区牛田早稲田4丁目
価格
1,280 万円
交通

バス停牛田早稲田団地 まで 徒歩8分

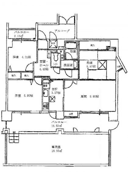
専有面積
66.61㎡
バルコニー
18.65㎡
間取り
3LDK
所在階/階数
1階 / 14階
築年数
1991年 (平成3) 10月
築34年
建ぺい率
容積率
土地権利
構造および階数
SRC(鉄骨鉄筋コンクリート) 造 地上14階建
総戸数
167戸
小学校区
早稲田 (477m)
中学校区
早稲田 (958m)
地目
現況
引渡時期
相談
駐車場
空有
駐車場月額
管理形態
全部委託
管理方式
管理人日勤
管理会社
(株)大京アステージ
管理費
8,500円
修繕積立費
16,290円
上水道
下水道
ガス
都市計画
用途地域
1種中高
設備・条件
シャンプードレッサー、洗浄便座、オートロック、角部屋、エレベーター
備考
▼平成31年3月大規模修繕工事施工:外壁、屋根、バルコニー、開放廊下

専用庭面積:18.95㎡ 駐車場:2台目可
取引態様
仲介
周辺地図を確認する

(弊社管理番号: 5003396)

【更新日】2026年04月30日

【次回更新日】2026年05月30日

その他周辺物件

この物件は2の方が興味を持っています。

お気軽にご来店ください!SHOP

店舗外観

すみはる商店

〒732-0052 広島県広島市東区光町1丁目6-30-102

営業時間:10:00〜18:00 定休日:水曜日・祝日

広島市東区・南区・安芸区、安芸郡の不動産情報はすみはる商店へ

HPを見たと言って、お気軽にお問い合わせください!

0120-859-869 0120-859-869

〒732-0052 広島県広島市東区光町1丁目6-30-102
営業時間:10:00〜18:00 定休日:水曜日・祝日

店内写真