1. ホーム
  2. 物件検索
  3. 物件詳細

収益物件/マンション広島市南区西霞町

PRICE DOWN
1 /10

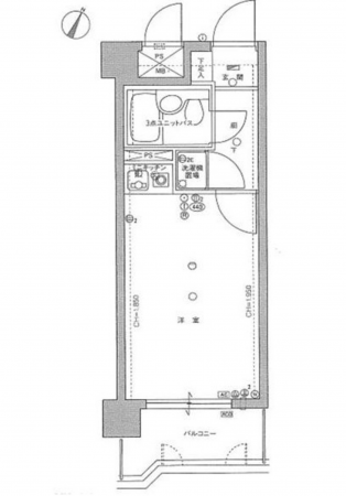
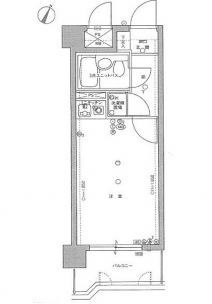
【間取り】

380万円

●角部屋
●自用・投資用にも可能
●周辺環境良好

物件概要

所在地
広島市南区西霞町
価格
380 万円
交通

バス停大学病院南門 まで 徒歩2分

専有面積
20.59㎡
バルコニー
3.25㎡ (南東側)
間取り
1R
所在階/階数
4階 / 10階
築年数
1990年 (平成2) 3月
築36年
建ぺい率
容積率
土地権利
構造および階数
RC・SRC造 10階建 造 地上10階建
総戸数
小学校区
大河 (586m)
中学校区
翠町 (1692m)
私道負担
地目
現況
引渡時期
相談
駐車場
上水道
下水道
ガス
都市ガス
都市計画
管理形態
全部委託
管理方式
管理人巡回
用途地域
近隣商業
設備・条件
オートロック、角部屋、エレベーター
備考
▼角部屋
▼オートロック
▼エレベーター1基
▼自転車・バイク駐輪場有
▼自用・投資用にも可能です
▼33,000円で賃貸募集中
取引態様
仲介
周辺地図を確認する

(弊社管理番号: 7000608)

【更新日】2026年04月13日

【次回更新日】2026年05月13日

その他周辺物件

この物件は37の方が興味を持っています。

お気軽にご来店ください!SHOP

店舗外観

すみはる商店

〒732-0052 広島県広島市東区光町1丁目6-30-102

営業時間:10:00〜18:00 定休日:水曜日・祝日

広島市東区・南区・安芸区、安芸郡の不動産情報はすみはる商店へ

HPを見たと言って、お気軽にお問い合わせください!

0120-859-869 0120-859-869

〒732-0052 広島県広島市東区光町1丁目6-30-102
営業時間:10:00〜18:00 定休日:水曜日・祝日

店内写真