1. ホーム
  2. 物件検索
  3. 物件詳細

収益物件/マンション広島市東区牛田早稲田4丁目

NEW
1 /14

950万円

■オーナーチェンジ ■賃貸中

物件概要

所在地
広島市東区牛田早稲田4丁目
価格
950 万円
交通

バス停牛田早稲田団地 まで 徒歩4分

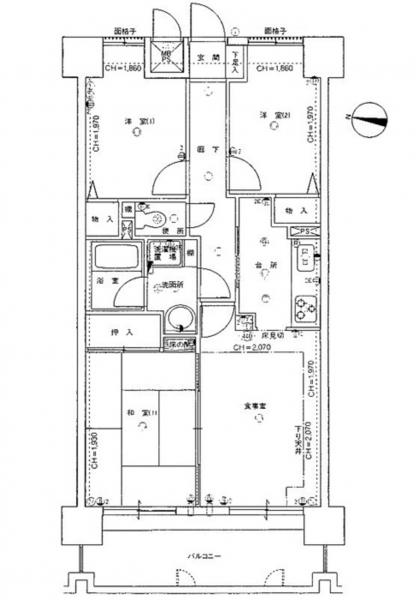
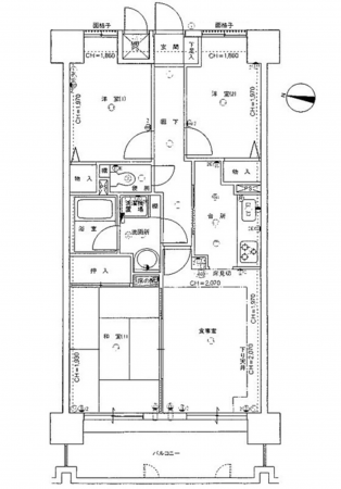
専有面積
62.70㎡
バルコニー
10.71㎡
間取り
3LDK
所在階/階数
12階 / 14階
築年数
1991年 (平成3) 10月
築34年
建ぺい率
容積率
土地権利
構造および階数
SRC(鉄骨鉄筋コンクリート) 造 地上14階建
総戸数
167戸
小学校区
早稲田 (450m)
中学校区
早稲田 (900m)
私道負担
地目
現況
賃貸中
引渡時期
相談
駐車場
上水道
下水道
ガス
都市ガス
都市計画
管理形態
全部委託
管理方式
管理人日勤
用途地域
1種中高
設備・条件
オートロック、エレベーター
備考
▼タイル貼り 
▼賃料70,000円/月 840,000円/年 敷金3ヶ月
▼高層階につき眺望良好 通風・陽当り良好
取引態様
仲介
周辺地図を確認する

(弊社管理番号: 7000693)

【更新日】2025年10月19日

【次回更新日】2025年11月19日

その他周辺物件

この物件は7の方が興味を持っています。

お気軽にご来店ください!SHOP

店舗外観

すみはる商店

〒732-0052 広島県広島市東区光町1丁目6-30-102

営業時間:10:00〜18:00 定休日:水曜日・祝日

広島市東区・南区・安芸区、安芸郡の不動産情報はすみはる商店へ

HPを見たと言って、お気軽にお問い合わせください!

0120-859-869 0120-859-869

〒732-0052 広島県広島市東区光町1丁目6-30-102
営業時間:10:00〜18:00 定休日:水曜日・祝日

店内写真