1. ホーム
  2. 物件検索
  3. 物件詳細

中古一戸建て広島市東区中山上2丁目ホーメスト広島中山台

1 /10

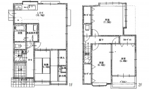
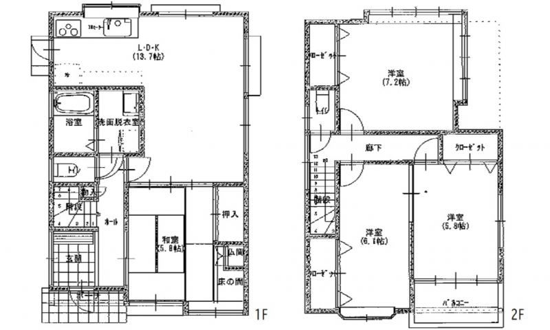
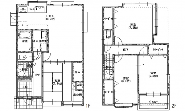
【間取り】

2,380万円

■令和7年1月 リフォーム完了物件!
■オール電化♪エコキュート
■駐車2台~3台

物件概要

所在地
広島市東区中山上2丁目ホーメスト広島中山台
価格
2,380 万円
交通

バス停東浄小学校前 まで 徒歩6分

接道状況
南西側 公道
土地面積
111.45㎡ (33.71坪)
建物面積
94.40㎡ (28.55坪)
間取り
4LDK
築年数
1992年 (平成4) 12月
築33年
建ぺい率
50%
容積率
100%
土地権利
構造および階数
木造 地上2階建
小学校区
東浄 (610m)
中学校区
戸坂 (1715m)
私道負担
地目
現況
引渡時期
相談
駐車場
3台
上水道
公共
下水道
公共
ガス
都市計画
用途地域
1種低層
設備・条件
システムキッチン、IHクッキングヒーター、オール電化、シャンプードレッサー、洗浄便座、駐車場3台分、エコキュート、トイレ2箇所
備考
▼令和7年1月全面改装済み:キッチン・ユニットバス・洗面台・トイレ交換、フローリング・クロス等張り替え、外装塗り替え
▼駐車2台から3台(小型車)可
取引態様
仲介
周辺地図を確認する

(弊社管理番号: 3005072)

【更新日】2025年11月28日

【次回更新日】2026年02月27日

その他周辺物件

この物件は774の方が興味を持っています。

お気軽にご来店ください!SHOP

店舗外観

すみはる商店

〒732-0052 広島県広島市東区光町1丁目6-30-102

営業時間:10:00〜18:00 定休日:水曜日・祝日

広島市東区・南区・安芸区、安芸郡の不動産情報はすみはる商店へ

HPを見たと言って、お気軽にお問い合わせください!

0120-859-869 0120-859-869

〒732-0052 広島県広島市東区光町1丁目6-30-102
営業時間:10:00〜18:00 定休日:水曜日・祝日

店内写真