1. ホーム
  2. 物件検索
  3. 物件詳細

新築一戸建て安芸郡府中町宮の町4丁目【B区画】

1 /2

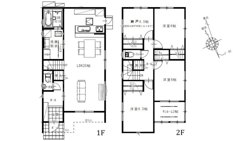
【間取り】

4,290万円

●府中町宮の町4丁目 新築戸建て

物件概要

所在地
安芸郡府中町宮の町4丁目【B区画】
価格
4,290 万円
交通

バス停宮の町5丁目 まで 徒歩5分

接道状況
西側 公道2.2m
土地面積
141.67㎡ (42.85坪)
建物面積
108.47㎡ (32.81坪)
間取り
3SLDK
築年数
建ぺい率
60%
容積率
160%
土地権利
構造および階数
地上2階建
小学校区
府中東
中学校区
府中 (620m)
私道負担
地目
現況
引渡時期
相談
駐車場
上水道
公共
下水道
公共
ガス
プロパン個別
都市計画
用途地域
1種中高
設備・条件
システムキッチン、カウンターキッチン、トイレ2箇所
備考
▼売建
▼ユアーズ府中店まで約740m(徒歩10分)
取引態様
仲介
周辺地図を確認する

(弊社管理番号: 3005253)

【更新日】2026年02月26日

【次回更新日】2026年05月26日

その他周辺物件

この物件は1186の方が興味を持っています。

お気軽にご来店ください!SHOP

店舗外観

すみはる商店

〒732-0052 広島県広島市東区光町1丁目6-30-102

営業時間:10:00〜18:00 定休日:水曜日・祝日

広島市東区・南区・安芸区、安芸郡の不動産情報はすみはる商店へ

HPを見たと言って、お気軽にお問い合わせください!

0120-859-869 0120-859-869

〒732-0052 広島県広島市東区光町1丁目6-30-102
営業時間:10:00〜18:00 定休日:水曜日・祝日

店内写真