1. ホーム
  2. 物件検索
  3. 物件詳細

新築一戸建て安芸郡府中町宮の町4丁目

1 /11

3,880万円

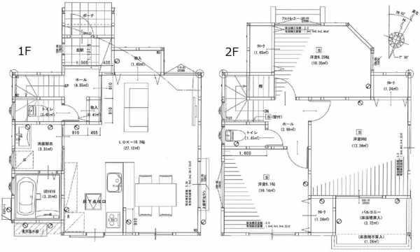
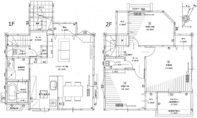
●3LDKの2階建て住宅
●小・中学校近く子育て環境良好

物件概要

所在地
安芸郡府中町宮の町4丁目
価格
3,880 万円
交通

山陽本線 天神川駅 まで 徒歩22分

バス停宮の町5丁目 まで 徒歩1分

接道状況
北側4m
土地面積
108.11㎡ (32.70坪)
建物面積
92.74㎡ (28.05坪)
間取り
3LDK
築年数
2025年 (令和7) 5月
建ぺい率
60%
容積率
160%
土地権利
構造および階数
木造 地上2階建
小学校区
府中東
中学校区
府中
私道負担
地目
現況
引渡時期
相談
駐車場
上水道
下水道
公共
ガス
都市計画
用途地域
1種中高
設備・条件
システムキッチン、カウンターキッチン、シャンプードレッサー、複層ガラス、モニタ付インターホン、床下収納、トイレ2箇所
備考
〇府中町立府中東小学校まで 徒歩9分
〇府中町立府中中学校まで 徒歩3分
〇ピッコロゴード保育園まで 徒歩11分
〇ローソン 府中町山田一丁目店まで 徒歩7分
〇スパーク浜田店まで 徒歩10分
取引態様
仲介
周辺地図を確認する

(弊社管理番号: 3005428)

【更新日】2026年03月09日

【次回更新日】2026年05月09日

その他周辺物件

この物件は467の方が興味を持っています。

お気軽にご来店ください!SHOP

店舗外観

すみはる商店

〒732-0052 広島県広島市東区光町1丁目6-30-102

営業時間:10:00〜18:00 定休日:水曜日・祝日

広島市東区・南区・安芸区、安芸郡の不動産情報はすみはる商店へ

HPを見たと言って、お気軽にお問い合わせください!

0120-859-869 0120-859-869

〒732-0052 広島県広島市東区光町1丁目6-30-102
営業時間:10:00〜18:00 定休日:水曜日・祝日

店内写真