1. ホーム
  2. 物件検索
  3. 物件詳細

新築一戸建て広島市東区温品7丁目

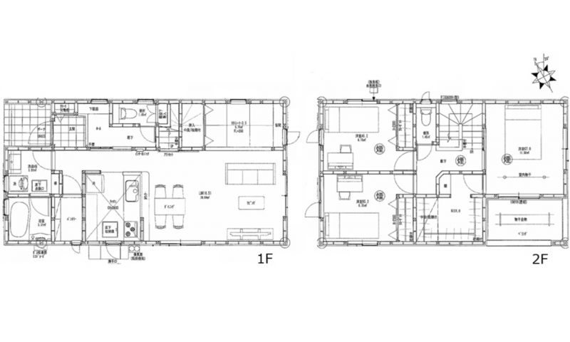
【間取り】

4,280万円

●全居室が角部屋・2面採光!
●LDK18.5㎡
●ウォークインクローゼット
●畳コーナー
●駐車場2台可能

物件概要

所在地
広島市東区温品7丁目
価格
4,280 万円
交通

バス停下温品 まで 徒歩4分

接道状況
北西側4.3m
土地面積
134.25㎡ (40.61坪)
建物面積
102.68㎡ (31.06坪)
間取り
3SLDK
築年数
2025年 (令和7) 3月
建ぺい率
60%
容積率
200%
土地権利
構造および階数
木造 地上2階建
小学校区
温品 (168m)
中学校区
温品
私道負担
地目
現況
引渡時期
相談
駐車場
2台
上水道
公共
下水道
公共
ガス
都市ガス
都市計画
用途地域
1種住居
設備・条件
システムキッチン、カウンターキッチン、食器洗浄乾燥機、シャンプードレッサー、洗浄便座、浴室乾燥機、複層ガラス、ウォークインクローゼット、モニタ付インターホン、駐車場2台分、床下収納、トイレ2箇所
備考
▼工法:在来工法 施工:トータテハウジング 
▼外構付
▼瑕疵担保保険付
▼フラット35S使用可能(但し、期限内に限ります) 
▼カップボードあり
取引態様
仲介
周辺地図を確認する

(弊社管理番号: 3005448)

【更新日】2025年11月29日

【次回更新日】2026年01月29日

その他周辺物件

この物件は154の方が興味を持っています。

お気軽にご来店ください!SHOP

店舗外観

すみはる商店

〒732-0052 広島県広島市東区光町1丁目6-30-102

営業時間:10:00〜18:00 定休日:水曜日・祝日

広島市東区・南区・安芸区、安芸郡の不動産情報はすみはる商店へ

HPを見たと言って、お気軽にお問い合わせください!

0120-859-869 0120-859-869

〒732-0052 広島県広島市東区光町1丁目6-30-102
営業時間:10:00〜18:00 定休日:水曜日・祝日

店内写真