1. ホーム
  2. 物件検索
  3. 物件詳細

マンションエメラルドマンション矢賀Ⅱ

1 /9

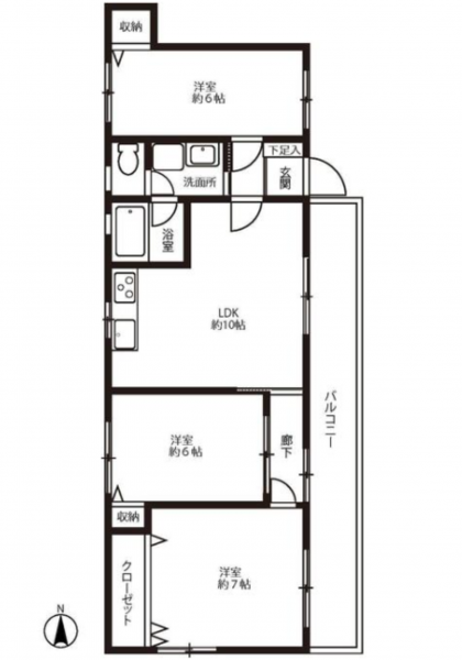
【間取り】

750万円

●間取りは人気の3LDK!

物件概要

所在地
広島市東区矢賀6丁目
価格
750 万円
交通

バス停鶴江橋 まで 徒歩4分

芸備線 矢賀駅 まで 徒歩16分

専有面積
61.14㎡
バルコニー
15.60㎡
間取り
3LDK
所在階/階数
4階 / 4階
築年数
1987年 (昭和62) 2月
築38年
建ぺい率
容積率
土地権利
構造および階数
RC(鉄筋コンクリート) 造 地上4階建
総戸数
28戸
小学校区
矢賀 (1269m)
中学校区
二葉 (2740m)
地目
現況
居住中
引渡時期
相談
駐車場
空無
駐車場月額
管理形態
全部委託
管理方式
管理人日勤
管理会社
日本ハウズイング(株)
管理費
6,690円
修繕積立費
16,570円
上水道
下水道
ガス
都市計画
用途地域
準工業
設備・条件
備考
▼買い物に便利なフォレオまで徒歩圏内

間取り図後日
取引態様
仲介
周辺地図を確認する

(弊社管理番号: 5003239)

【更新日】2025年11月28日

【次回更新日】2025年12月28日

その他周辺物件

この物件は26の方が興味を持っています。

お気軽にご来店ください!SHOP

店舗外観

すみはる商店

〒732-0052 広島県広島市東区光町1丁目6-30-102

営業時間:10:00〜18:00 定休日:水曜日・祝日

広島市東区・南区・安芸区、安芸郡の不動産情報はすみはる商店へ

HPを見たと言って、お気軽にお問い合わせください!

0120-859-869 0120-859-869

〒732-0052 広島県広島市東区光町1丁目6-30-102
営業時間:10:00〜18:00 定休日:水曜日・祝日

店内写真